| NIVEAU | PIÈCE | SURFACE |
Maison
BRIGNAIS (69530)
- 103 m²
- 5 pièce(s)
- 3 chambre(s)
- 954 m²
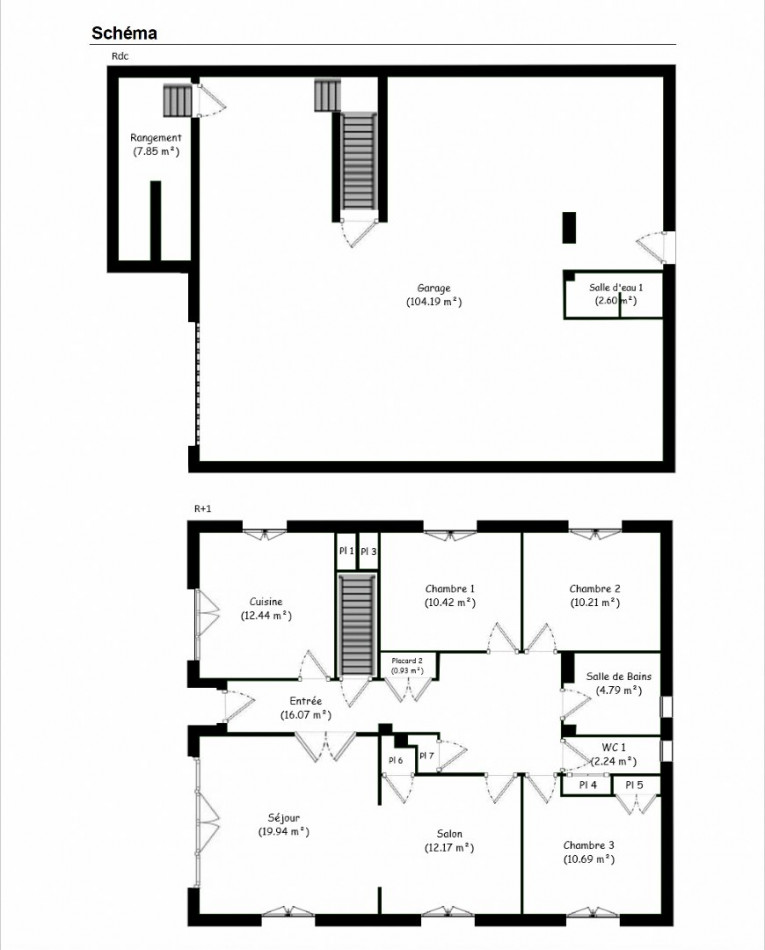
EN EXCLUSIVITÉ AGENCE - BRIGNAIS secteur PLAINE D'ÉLITE, au calme, sur une belle parcelle plate et close de 954 m2, maison de construction traditionnelle édifiée sur un sous-sol total. Fort potentiel pour cette maison dont le vaste plateau du sous-sol avec ses nombreuses ouvertures sur le jardin et ses 2,70 m de hauteur sous-plafond permet de doubler la surface habitable de la maison (ou de créer un second logement indépendant, des bureaux...).
Les combles sont également aménageables. Actuellement le niveau d'habitation, accessible par escaliers et par un monte-personne, se compose d'une entrée desservant : cuisine sur balcon, séjour-double sur balcon, de 3 chambres, d'une salle de bain, d'un W.C. indépendant et de nombreux rangements.
Vous apprécierez tout particulièrement : les belles hauteurs sous plafond (2,60 m), le charme des plafonds à angles arrondis, la luminosité, maison baigné de soleil du matin au soir!
Au sous-sol vous trouverez : aire de garage avec fosse mécanique, atelier, buanderie, Salle d'eau avec toilette, CAVE enterrée, chaufferie, adoucisseur et osmoseur.
Sur le terrain plat et clos, se trouvent un puits, de nombreux arbres fruitiers, un coin potager avec des serres chassis, un abris de jardin.
Emplacement idéal, centre de Brignais où règne une ambiance village accessible à pied en 10 minutes, proximité des écoles et facilités des transports.
Honoraires TTC charge vendeur
Notre barème d'honoraires
* Honoraires charge vendeur.
Ce bien ne figure plus au catalogue car il a été vendu.

Montant estimé des dépenses annuelles d'énergie pour un usage standard: entre 2 640,00€ et 3 630,00€ par an.
Prix moyen des énergies indexés au 01/01/2021 (abonnement compris)
cette annonce à un ami
Veuillez réessayer à nouveau






























